Projektdaten

Kunde
Buchhandlung am Ahrtor
Projektname
Buchhandlung am Ahrtor
Kategorie
Retail
Jahr
2024
Ort
Bad Neuenahr-Ahrweiler
Größe
74 qm
Status
realisiert
LPH
1-8

  • Ansicht Bücherregal mit integrierter rosafarbener Sitznische und dekorativer Decke

Feminin, farbenfroh und floral

Die alteingesessene Buchhandlung am Ahrtor mitten in der Altstadt von Bad Neuenahr-Ahrweiler blieb von der Hochwasser Flut 2021 nicht verschont und wurde, im Erdgeschoss gelegen, innen komplett zerstört. Während das historische Fachwerkhaus saniert wurde, konnte die Buchhandlung als Zwischenlösung in einer Wohnung das Geschäft weiterführen.

Als es um den eigentlichen Wiederaufbau der Innenräume der Buchhandlung ging, begann eine spannende Reise in die Welt der herzlichen Buchhändlerin.

 

Nach einer ersten Besichtigung (der damals noch desaströsen Situation) vor Ort begannen die Ideen für die kleine aber feine Buchladen zu sprießen: alles fing an mit einer Postkarte mit floralem Motiv (farbliche Inspiration der Bauherrin) und der Idee, das (Ahr-) Tor als raumbildendes Element einzubauen.

 

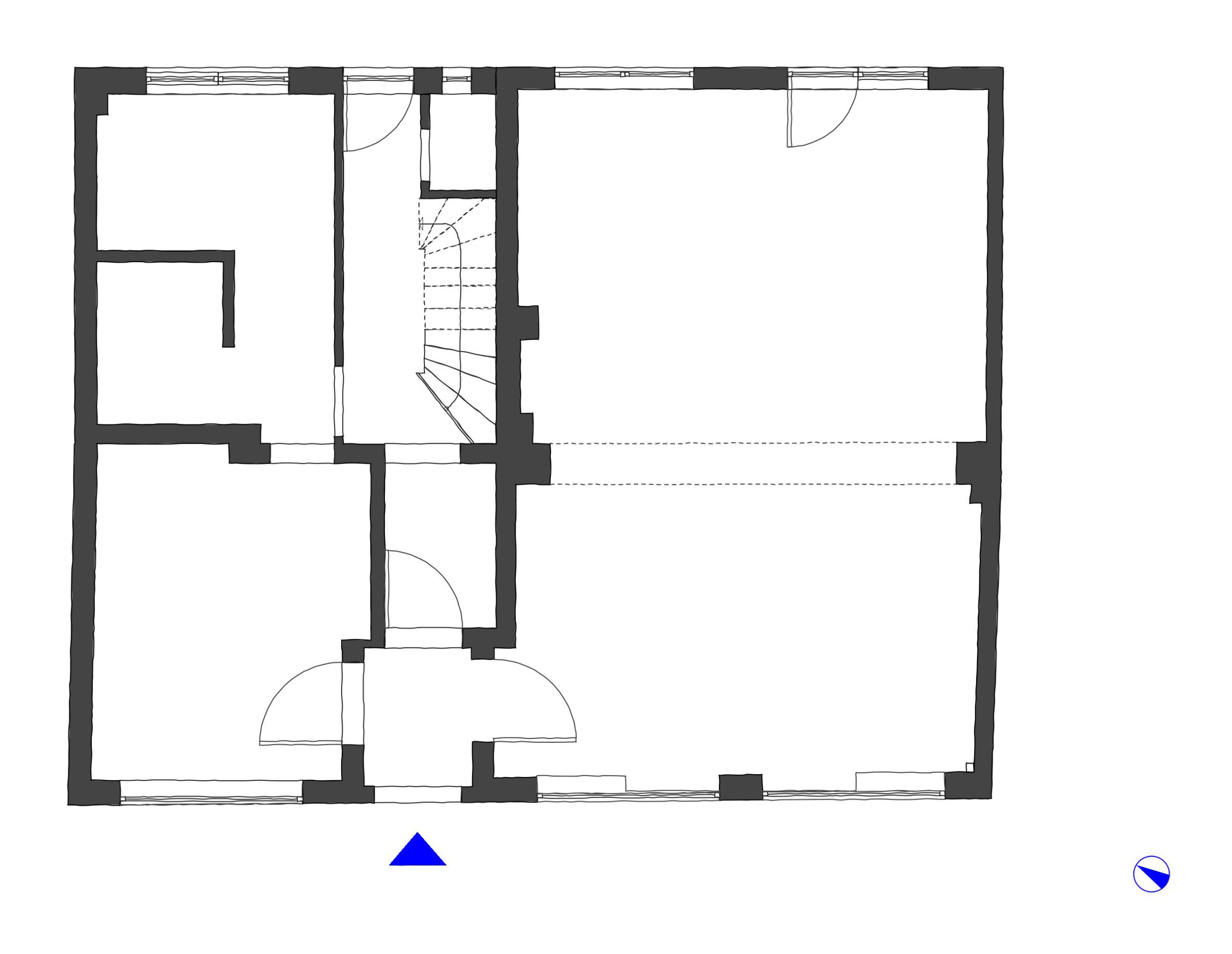
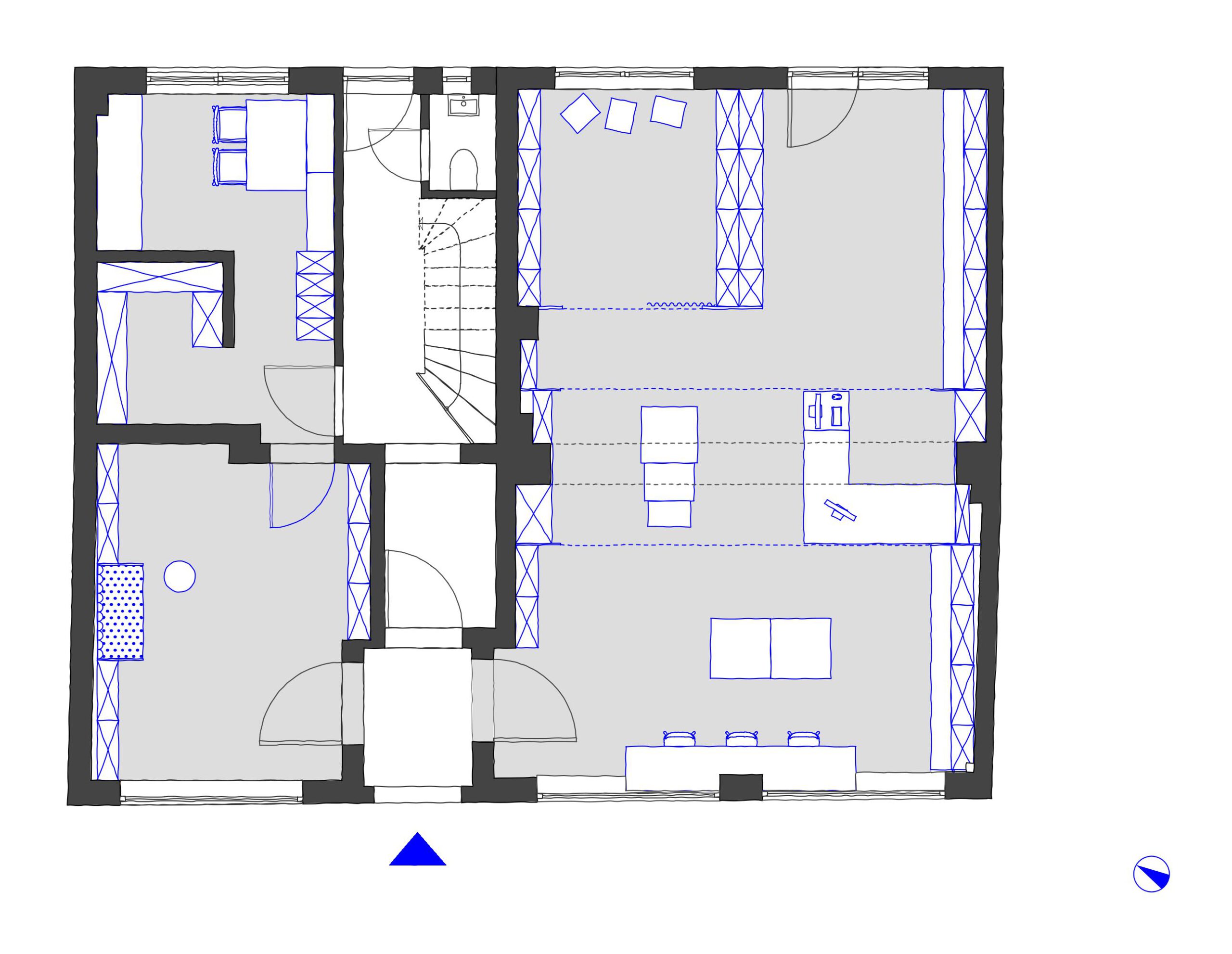
All das sollte auf kleiner Fläche geschehen und diese optimal nutzen, denn der Laden verteilt sich auf zwei Ladeneinheiten mit großen Schaufenstern (58 qm und 16 qm) mit insgesamt nur 74 qm. Hier galt es, alle Abteilungen unterzubringen, einen Kinderbereich und eine einladende Kasse zu schaffen, gleichzeitig neue Aufenthaltsbereiche und eine gute Beleuchtung. Ein anregendes und barrierefreies Einkaufserlebnis zu schaffen war ebenso Vorgabe wie eine flexible Nutzung bei Veranstaltungen.

Große Gesten auf kleiner Fläche

So entstand eine große, zonierende und identitätsbildende Geste: die kompakte Kasse und damit die persönliche Beratung begrüßt als Zentrum mitten im Laden und wird zusätzlich betont durch einen riesigen Bogen, der sich schützend darüber spannt. Das schafft Orientierung entlang eines vorher ungeliebten Unterzugs und sorgt für eindeutige Zonen auf der kleinen Fläche.  Auch versteckter (Lager-) Stauraum, ein Beratungsplatz und die Geschenkverpackung sind hier untergebracht.

 

Ebenfalls durch einen (kleineren) Bogen zu betreten findet sich die neue Kinderabteilung: ganz in lindgrün und mit einer romantischen floralen Tapete, die sich über Decke und Wand erstreckt und den Raum für die kleinen Leser zu einem ganz eigenen Reich macht, Sitzmöglichkeiten inklusive. Der Möbelkubus besteht aus Bücherregalen und bietet ausreichend Platz für die größtmögliche Auswahl auf wenigen Quadratmetern. Gleichzeitig ist der Bereich trotzdem gut einsehbar von stöbernden Eltern und hilfsbereiten VerkäuferInnen. Verschließt man hier den Vorhang, so wird der Durchgangs-Bogen zur Bühne im Fall eines Events wie z.B. einer Autoren Lesung.

 

Entlang der Schaufenster lädt eine entspannte Lesebar mit rosafarbenen Barhockern zum spontanen Stöbern und Beobachten der Fußgänger ein. Aufgrund der Ladengröße war es der Wunsch, die Schaufenster so offen und einladend wie möglich zu gestalten – hier werden nur wenige ausgesuchte Bücher präsentiert, denn der Blick in den Laden selbst soll zum Besuchen anregen.

Leidenschaftlich Lesen

Gleich neben dem großen Verkaufsraum gibt es einen nur durch einen separaten Eingang begehbaren kleinen aber feinen weiteren Raum, der ebenfalls zum Buchladen gehört. In diesem „Schmuckkästchen“ an Raum sind die New Adult Abteilung sowie Produkte, die die Buchwelt ergänzen („Non-Book“), Kalender und andere saisonale Themen untergebracht. Farblich passend zum Rest findet sich hier die florale Tapete an der Decke wieder und gibt die Farbwelt für die Wände und Einbauten sowie den integrieren „Lese-Bogen“ vor.

 

Alles in allem lebt das Raumkonzept von femininen Akzenten, einer stimmigen Farbwelt und großen räumlichen Gesten, die die kleinen Räumen spannend inszenieren und den Büchern eine individuelle Bühne geben. „Persönlich, wohlig und warm“ und mit einem unvergleichbaren Charme sollte der Ort werden, den die Bauherrin sich für Ihren Neustart vorgestellt hat. Mehr wie ein Zuhause als eine Bibliothek und gerne mit mehr Farbe als üblich. Das haben wir uns zu Herzen genommen und ein ganzheitliches, warmherziges Konzept entwickelt.

 

Es war eine besondere Freude, die abstrakten Wünsche der Bauherrin auf diese Art zu interpretieren und eine Welt zu entwerfen, die sie sich nie hätte träumen lassen aber immer gewünscht hat.

  • Buchhandlung mit zonierender Bogenarchitektur, zentraler Verkaufstheke und Bücherregalen in heller, offener Raumstruktur

  • Innenraum Buchhandlung mit großem Rundbogen, Präsentationstischen und Kassenbereich in dunkelgrünem Farbkonzept

  • Detail von rosafarbenen Barhockern vor einer Fensterbank in einer modern gestalteten Buchhandlung

  • Zentraler Kassenbereich einer Buchhandlung mit dunkler Decke, integrierter Beleuchtung und umlaufenden Bücherregalen

  • Blick durch Buchhandlung mit Präsentationstisch im Vordergrund und Rundbogen zum Kinderbereich im Hintergrund

  • Kinderbereich einer Buchhandlung mit floral gemusterter Tapete, Bücherregalen und Sitzkissen unter einem Rundbogen

  • Detail eines grünen Vorhangs vor Bücherregal mit Kinderbüchern in einer Buchhandlung

  • Schöner Raum mit Bücherregalen auf beiden Seiten und Fenster am Ende, gestaltet für Kinder- und Jugendbücher

  • Grünes Einbaumöbel mit integrierten Bücherregalen und Präsentationsflächen in einer Buchhandlung

  • Lese-Nische mit gepolsterter rosa Sitzbank in Rundbogenform, umgeben von Bücherregalen und floraler Decke

  • Detailaufnahme einer rosafarbenen Polsteroberfläche einer Sitzbank in einer Buchhandlung

vorher

Fotografie

Liberty Visuals

Grundriss