Projektdaten

Kunde
HÈLIO
Projektname
Personal Training Studio
Kategorie
Health
Jahr
2024
Ort
Koblenz
Größe
280 qm
Status
realisiert
LPH
1-8

Safe Space für gesunde Fitness

Personal Training und Fitness mal anders: für das inhabergeführte Fitness Studio HÈLIO durften wir den neuen Standort in der Koblenzer Innenstadt planen mit dem klaren Auftrag, einen positiven, motivierenden Ort zu schaffen, an dem das Training Freude macht. Das farbenfrohe Corporate Design und die Marke finden sich im Raum wieder und schaffen so eine individuelle Atmosphäre, die sich vom Flair der anonymen und austauschbaren Fitnessstudio Ketten abhebt. Auf rund 280 qm bietet das Studio flexible Lösungen für unterschiedlichste Trainingsformen.

Eine mutige Gestaltung mit Farb Booster und Reflektoren, irisierende Effekte und vielen Pflanzen, Nachhaltigkeit und positivem Mindset. Das alles mit kleinem Budget und einfachen Lösungen, die der Bauherr größtenteils in Eigenregie realisiert hat.

Im Mittelpunkt stand die Idee, eine Umgebung zu schaffen, die Menschen inspiriert, aktiviert und fördert – ganz gleich, ob sie zum ersten Mal ein Fitness Studio betreten oder bereits Teil der HÉLIO-Community sind. Es geht um ein Raumgefühl, das motiviert, Vertrauen schafft, Lust auf Weiterentwicklung macht und dabei der wachsenden Community ein Zuhause bietet. 

Die Materialwahl folgte dabei einem klaren Prinzip: maximale gestalterische Wirkung bei begrenztem Budget. Um dies zu erreichen, wurden alltägliche Materialien neu gedacht und bewusst eingesetzt. Statt klassischer Maßanfertigungen kamen modulare, kostengünstige Möbel zum Einsatz, die durch gezielte Ergänzungen individuell angepasst wurden – fast ohne aufwändige Schreinerarbeiten.

Ein großes Highlight stellt die Dichroic-Folierung der bestehenden Glastrennwände dar. Das durch die Folie entstehende Farbspiel taucht das Studio in immer neue Farben und schafft spannende Reflektionen.

Positiv, mutig, motivierend

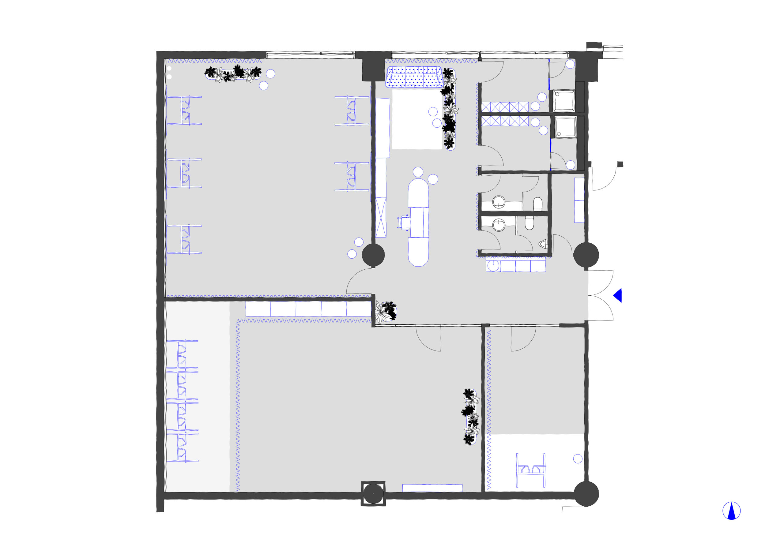
Jeder Raum hat hierbei eine klare Funktion, eine eigene Farbwelt und individuelle Atmosphäre:

Klein, konzentriert, individuell: im „Solo“ Raum finden 1 zu 1 Personal Trainings statt – ausgestattet mit Geräten und der Ruhe für fokussiertes Einzeltraining. Die kräftige Farbe und der Vorhang mit seiner akustischen Wirksamkeit unterstreichen den Fokus auf das Training. 

Vielseitig und offen: der große Kursraum, fungiert als multifunktionaler Raum – großzügig, mit Spiegelflächen, Stauraum für Equipment und. Hier stehen den Mitgliedern Gewichte und Squad Racks zur Verfügung, die mit Hilfe eines Vorhangs verdeckt werden können. Mit diesem lässt sich der Raum umkompliziert in einen Raum für entspannte Yoga-Sessions verwandeln.

Hell, dynamisch, kraftvoll: das Studio lebt von Tageslicht, Spiegeln, klarer Gestaltung und robuster Ausstattung. Squad Racks, Kurzhantelbereich und ein vollflächiger, nachhaltiger Gummiboden machen ihn zum Allrounder für freies Training und Kleingruppen.

Die offen sichtbar belassene Haustechnik an der Decke wurde bewusst Teil des Gestaltungskonzepts. Statt sie zu verstecken, haben wir sie als spannendes visuelles Element integriert. Im Eingangs- und Communitybereich wird sie durch ein sich windendes Lichtband gezielt inszeniert. In Anlehnung an die funktionale Anmutung der Haustechnik wurden die Funktionsräume des Studios mit Wellblech verkleidet.

Der Eingangsbereich empfängt mit Offenheit und Leichtigkeit. Die große Theke schafft eine klare Adresse und einen Arbeitsplatz. Die gemütliche Lounge ist Raum zum Austauschen vor und nach den Kursen. Merchandise und ein Getränkebereich für Wasser, Tee und Kaffee ergänzen den Raum und machen ihn zum Dreh- und Angelpunkt für die HÉLIO-Community.

Entstanden ist ein Studio, das Haltung zeigt: mit klarer Struktur, einer durchdachten Organisation der Flächen und einer Atmosphäre, die Wärme, Offenheit und Energie ausstrahlt. Visuelle Akzente und eine kreative Materialwahl bringen gestalterische Tiefe ins Konzept – und machen so den Charakter der Marke HÉLIO räumlich spürbar.

HÉLIO ist ein inhabergeführtes Studio im Zentrum von Koblenz mit Fokus auf funktionales Personal Training. Es bietet eine klare Alternative zum klassischen Gym – persönlich, vielseitig, gemeinschaftlich und mit physiotherapeutischer Expertise. Benannt nach Hélio Gracie, steht das Studio für ein ganzheitliches Training, das körperliche Stärke und mentale Entwicklung verbindet – in einem Umfeld, das auf individuelle Betreuung und echte Begegnung setzt.

vorher

Fotos

Liberty Visuals

Grundriss