Projektdaten

Kunde
Hotel Zugbrücke
Projektname
Waldwinkel Hotelzimmer
Kategorie
Hospitality
Jahr
2025
Ort
Höhr-Grenzhausen
Größe
 
Status
realisiert
LPH
1-5

Vom Standardzimmer zum neugestalteten Hotelzimmer mit Charakter

Für das Wellness-Hotel Zugbrücke durften wir 36 Doppelzimmer neu denken und gestalten: Hotelzimmer Neugestaltung mit der Anforderung eines nachhaltigen Umgangs mit bestehenden Einbauten. Ziel war eine stimmige, zeitgemäße Neupositionierung der Hotelzimmer in der Standard Kategorie – mit neuem Namen, klarer Haltung und hoher Aufenthaltsqualität. So entstanden die „Waldwinkel“ Zimmer.

Ruhe, Wohlfühlen und Wiedererkennung

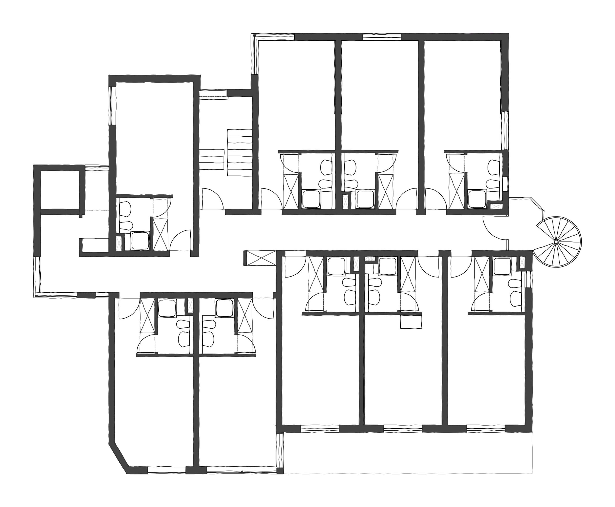
Die 36 Zimmer verteilen sich auf vier Etagen wobei das Bad unverändert blieb, der Fokus lag auf der Gestaltung des Hauptraums. Mit verhältnismäßig einfachen Mitteln hat sich der Look der Räume komplett verändert von weiß und steril zu wohlig und warm.

Eine eindeutige Zonierung durch dunkle Farben an Wänden und Decke und damit spielende Vorhänge sorgen für eine ganz neue und gemütliche Wohlfühl-Atmosphäre. Das neue Kopfteil in Dachform ist Namensgeber für die Zimmer, verbreitet mit indirektem Licht stimmungsvolle Beleuchtung und fasst die beiden Betten zu einem großzügigen Bett zusammen. Der kompakte Arbeitsplatz mit integrierter Kofferablage ist nun genauso zeitgemäß wie das neue TV Board, welches mit seinen Ketten an die Zugbrücke erinnert. 

Warme Naturtöne, textile Weichheit und klare Linien schaffen eine ruhige, erdende Stimmung. Bestehende Elemente wie die Vertäfelungen aus Eichenfurnier wurden integriert und Beleuchtung, Teppich, Möbel sowie Textilien neu konzipiert. Die Signature Farbe des Hotels – leuchtendes Neon-Orange – taucht als Vogelhaus und Hocker auf.

Das Ergebnis: ein hochwertiges Hotelzimmer-Design, das Nähe zur Natur vermittelt, ohne thematisch zu überladen. Auch die Flure wurden neu gestaltet mit passendem Teppich und einer freundlichen Wandgestaltung sowie dazugehörigen Zimmernummern.

Skalierbare Hotelinnenarchitektur

Ein zentrales Ziel der Hotelzimmer Neugestaltung war die effiziente Umsetzbarkeit der Ideen für alle Etagen. Das Interior-Konzept ist robust, wirtschaftlich geplant und langfristig im Hotelbetrieb tragfähig.

Die „Waldwinkel“ Zimmer zeigen, wie sich durchdachte Hotelzimmer-Renovierung mit präziser Planung und klarem Gestaltungskonzept realisieren lässt – ohne Komplettumbau und im laufenden Betrieb realisiert, aber mit maximaler Wirkung.

  • Hotelzimmer mit grünem Farbkonzept, Doppelbett und geometrischer Wandgestaltung im Hospitality Design

  • Geometrische Wandleuchte in Form eines Fuchses als Detail im Hotelzimmer

  • Neon Rotes Vogelhaus als dekoratives Wandobjekt neu gestaltetem Hotelzimmer

vorher

grundriss

fotografie

neon fotografie Anna Schneider